Ka pēhea te rapu i ngā mahere hoahoa mahi tūmatanui
How to find public works plans
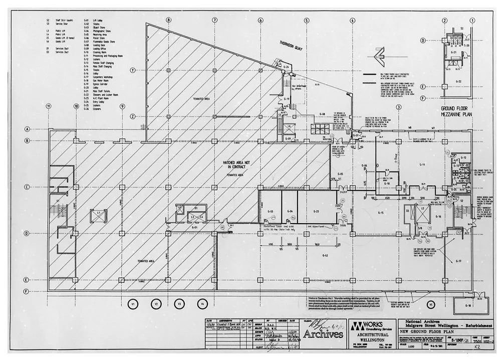
For more than a century the Public Works Department (the Ministry of Works) constructed the buildings, roads, rails, stations and bridges that New Zealanders worked in and travelled on. Discover how to find the plans for these works in our Wellington Archive.
Finding original plans
A good place to start your search is in series 22541. This collection holds 78,000 original works plans, spanning 100 years. The plans are listed by number, making it easy to determine whether a plan is held in the series.

Plans 1 to 30,000 cover the years 1870 to 1911. They have full descriptions in Collections search.
Plans from 1912 onward are only listed by number, so it’s important to know the number of the plan you are looking for.
Visit Collections search to find public works plans If you’re searching for a plan number from 1912 or later, you might find it in the index in our Wellington reading room. This index, catalogued online as series 6587, consists of 14 microfilm reels ordered by type of plan – bridges, motorways, buildings and others.

Plan numbers can also be found in other places. If you find a reference to a Public Works Department/Ministry of Works plan in a document there is a good chance we'll hold the plan. Send us a research request
Aperture cards and negatives
Aperture cards
We have aperture cards containing images of plans that have not survived.
Series 24411 is mounted on microfilm aperture cards and contains images of many original plans. This includes not only the common Public Works Department and Ministry of Works plan sequences, but also smaller plan sequences such as the Government Architect plans.
Series 24411 is particularly good for finding 20th-century plans and includes some as recent as the 1990s.

Negatives
As well as aperture cards, there is a set of negatives in series 24411. These negatives include images of plans that cannot be found in either the originals or on the aperture cards.
Due to their delicate format, the negatives cannot be ordered and viewed as easily as the originals or aperture cards. However, we can tell you if a plan can be found in the negatives and arrange a viewing for you.
Can’t find what you’re looking for?
The research services archivists are always available to help you find, and order works plans either in the reading room or by email or post.